现代极简以极简的设计手法,融合现代风的温情,打造个性而温暖的居住空间。设计师们敢于打破常规,用更为独特,个性的造型,打造更具想象力的空间氛围。整体以明朗敞亮的设计感呈现家居格调,风格上充满质感与层次,同时将轻奢元素融入其中,让整个空间简洁而不失奢华。
SERIES
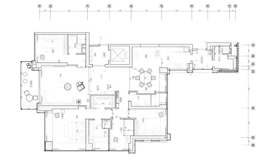
户型:5室2厅2厨4卫
面积:238平方
风格:现代极简

▼


▼
让空间的视野更为开阔,让人感觉内外通透至极。
大理石背景墙是家居装修设计中不可缺少的墙面装饰,它不但美观大气,而且具有吸音、隔音、吸波、养生等功能。

大理石在家装和工程设计中,已经成为了“焦点”,也是大户型居室的重点之一,在装修中占据相当重要的地位,不但吸引了人们的眼球,更是体现主人品味与个性化的特殊空间。
▼
玻璃设计的餐厅空间,


餐厅装饰除了要注重家具的选择外,更要注重灯光的调节以及色彩的运用,这样才能装饰出一个独具特色的餐厅。
▼
味至浓时是故乡
行动是唯一能提高你厨艺的方式
南来或北往,愿为一人下厨房
嵌入式的设计,厨房更具整体性,定制橱柜把厨房的各种电器和杂物收纳得整整齐齐。 ▼ 从黑夜到清晨,从春季到冬天, 一个人也好,两个人也罢, 它始终以气候相宜的温度, 柔软而温柔地包裹主人的人生悲欢。 人性化的空间设计,辅以温润的色调,提升休憩质量。 Bathroom 浴室 ▼ 工作了一天后,回到家的第一件事, 清理掉一天的“灰尘”换一身舒适的衣服, 该是一件多美好的事情。 ▼ 次卧空间的设计,更是将储物和床进行了一体式设计,每1㎡的空间都得到了完美利用,不浪费每一寸空间。 Girl's room 女儿房 ▼ 整片落地窗带来良好的采光, 让房间显得更加通透敞亮。 岁月静好、优雅弥漫,用心为孩子定制一方天地。 Boy's room 男孩房 ▼ 深色调的在大面积应用时能带来高雅的气势。 蓝色调经久不衰,是当之无愧的经典。它深邃优雅,清爽的蓝色备受青睐,柔和的蓝色依旧是儿童房的热门色彩。 对于家,每个人都有自己主张与向往,华尔乐大宅全案整装致力于为每位消费者打造其理想、舒适的家居产品。



















